Du är här:
Ritningar & handlingar för byggprojekt
Det krävs olika handlingar och ritningar beroende på vad du vill bygga eller förändra. Du kommer att behöva skicka in ett antal ritningar och handlingar som visar placeringen och utformningen på det som du ska bygga. På den här sidan har vi beskrivit några olika typer av ritningar och handlingar som kan behövas samt vilka kvalitetskrav vi ställer.

Krav på ritningar
Genom att lämna in bra ritningar från början kan du få beslut snabbare och slipper komplettera din ansökan. Du får göra dina egna ritningar men vi råder dig att anlita en fackman, som kan hjälpa dig med mycket mer än bara ritningar. Om ritningen inte uppfyller minimikraven när den lämnas in förlängs bygglovsprocessen genom att vi kommer att kräva in en ny ritning.
Tänk på att alla ritningar ska vara fackmannamässigt ritade. Det betyder att de ska vara:
- ritade med datorbaserat verktug (CAD) eller noggrant med linjal
- ritat med svarta linjer på vit bakgrund. Använd inte rutat eller linjerat papper.
- måttsatta (höjd, längd, bredd eller avstånd) i meter, med minst en decimal.
- skalenliga och ha en skalstock (ett måttsatt skalstreck som visar skalan) så att det går att kontrollera att skalan och måtten stämmer.
Det är bra om det finns en ruta med information om fastighetsbeteckning, ritningstyp, skala, datum samt vem som har gjort ritningen.
Det ska även tydligt framgå vad som ska byggas och vad som är befintligt. Utritade byggnader ska vara lägesbestämda mot tomtgräns. De ska alltså ha två vinkelräta mått mot tomtgräns så att minsta avstånd till granne eller tomtgräns framgår. Det ska finnas markeringar på planerna var detaljer är placerade samt var sektionerna är tagna, var snittet går.
Detaljnivån ska vara så noggrann att handläggaren kan skapa sig en verklighetstrogen bild av hur det som ska byggas kommer att se ut. Det räcker till exempel inte att presentera vindskivor, fönster och så vidare med ett enkelt streck.
Byggnadsförslaget ska vara genomprojekterat. Det innebär att bland annat att takfötter (gränsen mellan tak och yttervägg) och andra konstruktiva detaljer måste ha en viss tjocklek för att kunna byggas, och marklinjer ska redovisas - befintliga och nya. Linjerna ska möta varandra för att kunna säkerställa att lutningar blir genomförbara och att utformningen kan bedömas.
Exempel på ritningar och underlag
En situationsplan är en karta som visar hur en byggnad eller anläggning placeras i förhållande till omgivningen. Situationsplanen gör det lättare att förstå hur byggnaden kommer att passa in i omgivningen och hjälper oss att bedöma om projektet uppfyller gällande regler och riktlinjer.
Beroende på vilken åtgärd du ska göra behöver din situationsplan vara mer eller mindre detaljerad. Fråga någon av våra bygglovhandläggare om du är osäker på vad som krävs för just ditt projekt. Beskriv den planerade åtgärden så noggrant som möjligt; vilken typ av bygglovsärende det rör sig om, i vilket område fastigheten ligger, var på fastigheten åtgärden planeras med mera.
Ibland räcker det med en enkel skiss eller utdrag från webbkarta men ofta behöver vi ett bättre underlag. Situationsplanen kan baseras på någon av kommunens kartprodukter. Läs mer om våra kartprodukter och ladda ner blanketten för beställning.
- Som regel behöver du en nybyggnadskarta när du ska bygga ett nytt hus inom inom planlagt område. Nybyggnadskartan redovisar bland annat fastighets- och rättighetsgränser, byggnader, inmätta markhöjder, detaljplanebestämmelser, höjdfix och VA-anslutning. Den omfattar hela fastigheten eller området som ska projekteras eller bebyggas.
- En förenklad nybyggnadskarta används för nybyggnation utanför detaljplan och för komplementbyggnader, tillbyggnader med mera som kräver bygglov. En förenklad nybyggnadskarta redovisar bland annat aktuell detaljplan, byggnader och inmätta markhöjder. VA-anslutningar redovisas inte.
- Bygglovskartan är den enklaste typen av karta. Den används till mindre åtgärder som till exempel inglasade uterum, carport och förråd. I bygglovskartan redovisas bland annat byggnader, fastighetsgränser och detaljplan.
Exempel på situationsplan
Pdf, 266 kB, öppnas i nytt fönster.
En planritning visar själva byggnaden uppifrån så att det går att se hur byggnaden ska vara utformad och användas. Om det finns flera våningar ska det finnas en planritning för varje våningsplan som berörs av det du ska göra.
- Planritningarna ska vara skalenliga och redovisa utvändiga mått, samt vara möblerade och redovisa fönstrens och dörrarnas placering.
- På ritningen ska du ange vad de olika rummen ska användas till, till exempel ”sovrum” eller ”kök”.
- Väggarnas in- och utsida ska ritas in.
- Alla dörrar och fönster ska vara inritade skalenligt och stämma med fasadritningen.
- Det ska finnas en markering som visar var snittet är taget för sektionsritningen.
- Det ska finnas skalangivelse och skalstock (ett måttsatt skalstreck som visar skalan) på ritningen.
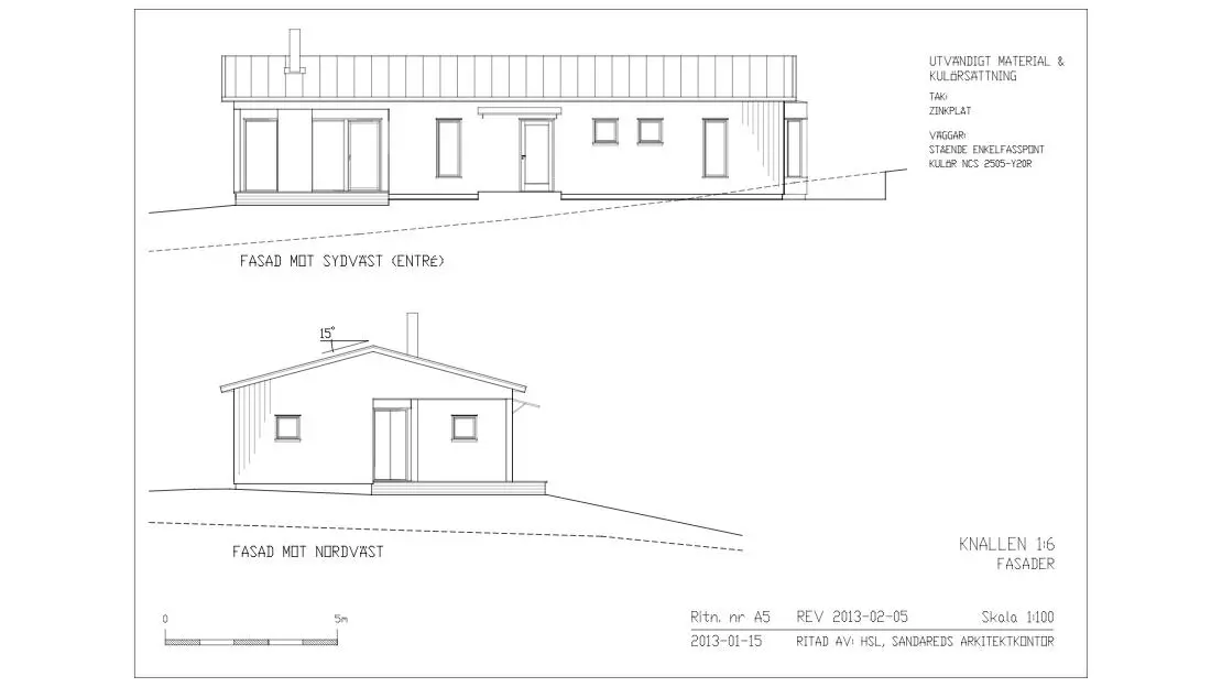
En fasadritning visar hur en byggnad ska se ut utvändigt när den är färdigbyggd. Alla fasader som berörs av åtgärden ska redovisas.
- Fasadritningen ska vara i skala 1:100 och innehålla en måttstock.
- Ritningen ska visa hela byggnaden från alla berörda väderstreck. Väderstrecken ska stå med på respektive fasadritning. Om din ansökan bara berör en eller enstaka fasader räcker det att du redovisar dessa.
- Hela byggnaden ska vara med på fasadritningarna, och om du söker för en tillbyggnad, skylt eller fasadändring ska tillbyggnaden eller förändringen tydligt markeras.
- Befintliga och blivande marklinjer ska redovisas. Om marknivåerna inte ändras behöver du skriva det tydligt på fasadritningen tillsammans med en redovisning av befintlig marklinje.
En sektionsritning är en ritning som visar insidan av byggnaden från sidan.
- Ritningen ska visa hur byggnaden är uppbyggd med till exempel våningar, vind och källare.
- Sektionsritningar ska vara skalenliga och måttsatta med rumshöjd, byggnadshöjd, nockhöjd och taklutning.
- Den ska visa takvinkel, rumshöjd och nockhöjd.
- Den ska visa hur byggnaden ansluter till marken. Du ska också rita ut befintlig och blivande marknivå.
- Det ska finnas skalangivelse och skalstock (ett måttsatt skalstreck som visar skalan) på ritningen.
Exempel på sektionsritning
Pdf, 13 kB, öppnas i nytt fönster.
En kontrollplan beskriver de kontroller du som byggherre ska göra och vem eller vilka som ska utföra kontrollen. Syftet är att byggnadsnämnden ska kunna bedöma om regelverket enligt plan- och bygglagen kommer att uppfyllas.
Det ska finnas en kontrollplan för de flesta bygg-, rivnings- och markåtgärder som kräver lov eller anmälan. Kontrollplanen bestäms i samband med startbeskedet. Du som bygger kan vid enklare åtgärder ta fram ett förslag till kontrollplan själv, men vid större projekt är det oftast din kontrollansvarige som hjälper dig med den.
Information om vad du ska tänka på när du tar fram en kontrollplan.
En markplaneringsritning är mer detaljerad än en situationsplan. På markplaneringsritningen redovisar du exempelvis gångar, slänter och stödmurar, planteringar, in- och utfart samt parkeringar. Du ska även redovisa vilka material som finns på olika ytor – grus, gräs, sten eller asfalt.
Markera tydligt var sektionsritningar är tagna. Du ska även redovisa nya plushöjder bredvid befintliga, så att det är tydligt vilken markhöjd om är befintlig och vilken som är ny.
Exempel på markplaneringsritning
Pdf, 777 kB, öppnas i nytt fönster.
En marksektionsritning visar, med en genomskärning, hur stor en markförändring är. Oftast är den lämpligast att använda när du gör en markhöjning eller en terrassering. Marksektionsritningen ska:
- Redovisa hur marken ser ut före och efter förändringen.
- Vara skalenlig och måttsatt.
- Stämma överens med hur du redovisar förändringen på en situationsplan eller markplaneringsritning.
Exempel på marksektionsritning
Pdf, 46 kB, öppnas i nytt fönster.
Brandskyddsdokumentationen redogör och förklarar hur brandskyddet för en byggnad, ett byggnadsverk eller annan åtgärd kommer att utformas. Vid mer komplicerade projekt kan en sakkunnig behöva ta fram brandskyddsdokumentationen.
För att ta fram en brandskyddsdokumentation behövs kunskap om de brandkrav och de byggregler som gäller. En byggnad med ett bristande brandskydd kan vara direkt livshotande.
Handlingen ska vara fackmannamässigt utförd för att du ska kunna få startbesked. Brand- och utrymningsritningar ingår ofta i brandskyddsdokumentationen.
Brandskyddsdokumentationen beskriver bland annat:
- vilken typ av verksamhet som ska använda byggnaden.
- byggnadstyp och antal våningar.
- vilken brandteknisk byggnadsklass som ska gälla.
- eventuella brandtekniska installationer som ska installeras, exempelvis automatiska släcksystem, brandgasventilation, brandlarm och utrymningslarm.
Vid enklare åtgärder kan det ibland räcka med den enklare varianten brandskyddsbeskrivning.
När du ska bygga till en ny verksamhet, eller ändra användningen i en byggnad till en annan verksamhet, behöver du i samband med din ansökan komma in med en verksamhetsbeskrivning. I denna ska du ha med:
- En kort men utförlig beskrivning förklara vad det är för sorts verksamhet som kommer att bedrivas.
- Beskrivning av verksamhetens omfattning, hur den kommer att påverka exempelvis trafiksituationen eller om den har någon annan omgivningspåverkan.
- Redovisa hur många parkeringsplatser din verksamhet behöver och var de ska placeras.
Andra uppgifter som är bra att redovisa, beroende på vilken typ av verksamhet du ska söka för, är:
- Öppettider
- Förväntat antal besökare och anställda
- Hur varuleveranser och sophantering ska ske.
- Om din verksamhet kommer att orsaka buller behöver du beskriva detta.
En prestandadeklaration är en teknisk beskrivning av en produkt. Det är tillverkaren av en produkt som är ansvarig för att upprätta en prestandadeklaration.
En ritning på befintlig byggnad ska visa hur huset ser ut idag, när du söker bygglov. Ibland kan det räcka att du utgår från originalritningar, men ibland kan du behöva rita upp nya ritningar över hur din byggnad ser ut idag. Ritningarna behöver inte vara skalenliga.
Ritningar över befintlig byggnad behövs ibland för att vi ska kunna avgöra vad och hur mycket som förändras i samband med det du söker lov för.
Söker du gamla ritningar på din fastighet?
Om du söker ritningar på din fastighet, kan du kontakta oss. Då tittar vi i vårt arkiv och ser om vi har några. Skriv gärna vilka ritningar det är du vill ha, och om du vill ha dem skickade till din e-post eller utskrivna och skickade med vanlig post.
Uppdaterad:






